Green Architecture

Агровардарие

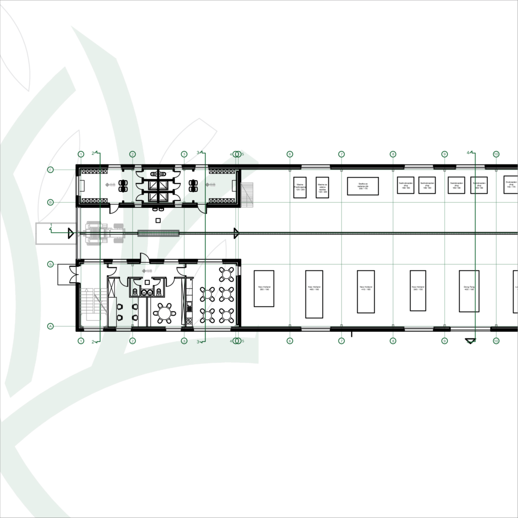
Овој објект за преработка на земјоделски производи и сервис за опрема е стратешки позициониран во приградски земјоделски амбиент во близина на Гевгелија.

Објектот е смислено поделен на три различни делови: административна област со работна кујна, назначен чист простор за возила и складиште. Неговиот архитектонски дизајн се одликува со долга, правоаголна структура со асиметричен фронтон покрив. Имено, ориентацијата на зградата овозможува ефикасно поставување на фотоволтаични панели, зголемувајќи ја нејзината одржливост.

Фасадата на зградата е украсена со повторување на прозорците, давајќи и естетски пријатен елемент на структурата и спречувајќи таа да изгледа монотоно. Поставен на позадината на околниот пејзаж, овој објект има големо и истакнато присуство, придонесувајќи за неговата севкупна визуелна привлечност и значење во областа.