Green Architecture

Барово Комплекс

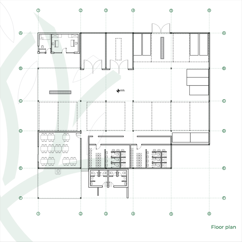
Сместено во спокојното село Барово, издвоено од урбаната гужва, овој проект го краси живописниот пејзаж кој се карактеризира со расцутени лозја и бујни, зелени шуми. Во непосредна близина на стара традиционална куќа, подигнавме еднокатна структура дизајнирана да служи како привремено престојувалиште и за вработените за време на сезоната на жетва и за посетителите во текот на целата година. Дополнително, тој располага со објект за складирање возила и основни алатки.

Плановите на оваа зграда се намерно едноставни, со чисти, ненатрупани форми кои даваат приоритет на функционалноста и практичноста. Во хармонија со присуството на постоечката традиционална куќа, вградивме традиционален габел покрив и користевме природни материјали, вклучувајќи камен и дрво, за да ја надополниме фасадата со едноставна, но елегантна естетика која беспрекорно го надополнува природното опкружување.