Green Architecture

Биоботаника

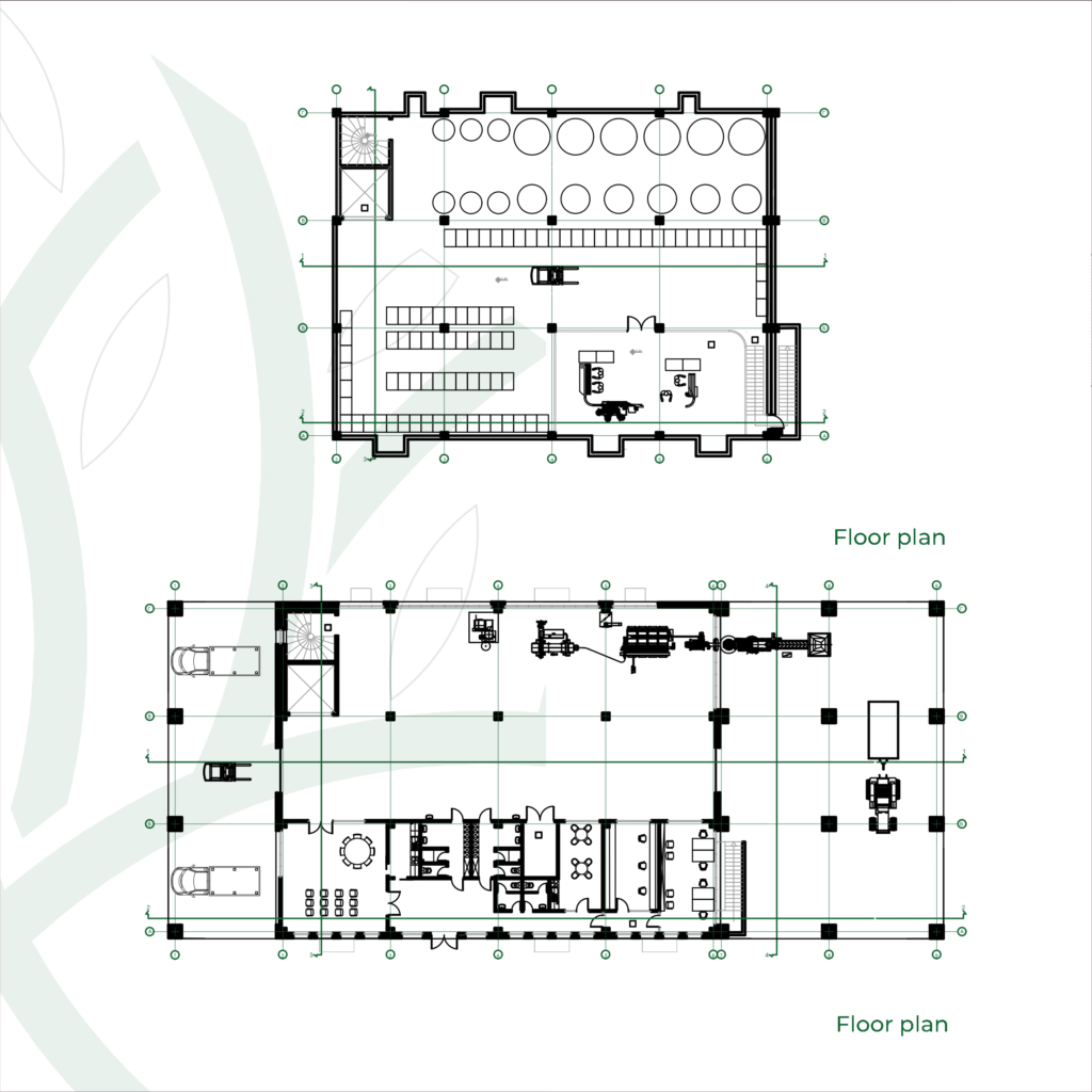
Лоциран во приградската околина кај Валандово, овој комплекс располага со два посебни капацитети наменети за преработка и складирање на маслинки.

Како одговор на специфичните барања и повлажниот терен, зградата добива форма на еднокатна структура со интегриран подрум.
Внатрешно, организацијата е јасна, која опфаќа две различни зони за преработка на маслинки, како и посветена административна област за работната сила.

Архитектонскиот распоред на зградата претставува функционален и неукрасен правоаголен отпечаток, проширен со дизајн на покрив на барака за практично покривање. Нејзината фасада е украсена со серија повторувачки прозорци, од кои секој има грациозни лакови кои се елегантно нагласени со метални рамки, следејќи ја искривувањето на отворите на прозорите. Овие дизајнерски елементи служат и за функционална цел и придонесуваат за севкупната естетска привлечност на структурата. Големината и истакнатоста на овој комплекс се дополнително нагласени со околниот пејзаж, а неговата фасада од тули хармонично го надополнува целокупното визуелно влијание на објектот.